Photos construction en une journée

La vie au domaine ATV
User avatar
bulle
Posts: 323
Joined: 22 Jul 2008, 22:40
Location: Floreffe, Lot 32

Photos construction en une journée

Post by bulle »

Je ne suis pas sûr du nom exact de la société. (Modular je crois)
Mais en vidant mon appareil photo aujourd'hui, je ne résiste pas à partager ces images prises le 20 mai.

Une maison du lotissement a été construite par cette société qui préfabrique des gros blocs lego en usine qu'ils assemblent en une journée sur site. La maison est en béton armé assez bien isolée (K35) (Sa petite soeur arriverait bientôt).

On s'est arrêté en voyant le spectacle impressionant. Après avoir discuté avec le chef de chantier, bien sympatique, un gros avantage est le prix pour sûr et fort probablement la solidité.

Les maisons ne sont toujours pas vendues. La construction est impressionante. Je ne connaissais pas cette technique qui a probablement ces avantages et inconvénients.

Les images qui nous ont impressionés :
IMG_6445.JPG
IMG_6449.JPG
IMG_6451.JPG
IMG_6452.JPG
5 mins après le bloc était posé et l'électricité des différent blocs reliée...

Laurent
Posts: 86
Joined: 25 Aug 2008, 12:12
Location: Lot 143

Re: Photos construction en une journée

Post by Laurent »

Voici le lien vers cette société:

http://www.modulart.biz

Il y'a quelques mois, RTL-Tvi avait proposé un reportage au sujet de cette société. C'est assez impressionant, en effet... :mrgreen:

a+

User avatar
Em_Biau
Posts: 1526
Joined: 28 Jul 2008, 09:21
Location: Lot 122 (21 place de la rose des vents)

Re: Photos construction en une journée

Post by Em_Biau »

Je me suis demandé si la briquette de parement faisait partie des fameuses briques autorisées par le collège, tant par le fait qu'il ne s'agit que de plaquettes que parce qu'elles sont d'une teinte assez inhabituelle. Quelqu'un sait-il ?
Last edited by Em_Biau on 18 May 2010, 15:45, edited 1 time in total.

Sand &tribu
Posts: 432
Joined: 05 Aug 2008, 19:19
Location: Bruxelles- Lot 140

Re: Photos construction en une journée

Post by Sand &tribu »

Impressionant en effet....

User avatar
bulle
Posts: 323
Joined: 22 Jul 2008, 22:40
Location: Floreffe, Lot 32

Re: Photos construction en une journée

Post by bulle »

Em_Biau wrote:Je me suis demandé si la briquette de parement faisait partie des fameuses briques autorisées par le collège, tant par le fait qu'il ne s'agit que de plaquettes que parce qu'elles sont d'une teinte assez inhabituelles. Quelqu'un sait-il ?
Pendant qu'il déposait le dernier bloc, on discutait avec 2 personnes de la société. Et en fait, c'est des briquettes qui ne sont pas dans la liste de briques mais qu'ils ont proposé à l'urbanisme.

La maison est déposée carrelée, avec une cuisine équipée et une salle de bain prête à l'emploi.... Tout est là, il n'y a plus que quelques finitions entre les blocs.... Vraiment étonnant .

User avatar
baseric
Posts: 315
Joined: 29 Jul 2008, 13:10
Location: Maurlage 29 - Lot 104

Re: Photos construction en une journée

Post by baseric »

Brrr j'aimerais pas habiter là dedans. J'aurais toujours peur de me réveiller sur un bateau à containers. :P

User avatar
cvwilder
Posts: 65
Joined: 29 Jul 2008, 11:29
Location: Chemin de la Givronde, 17 (Lot 40)

Re: Photos construction en une journée

Post by cvwilder »

Ce n’est pas vraiment ici qu’à la base je voulais mettre mon message à propos justement de ces maisons « Modulart » mais je ne retrouve pas le sujet de discussion « enflammé » qu’il y avait déjà eu à ce propos…enfin soit, voilà… :roll:

J’avais simplement envie de réagir par rapport à ces constructions "Modulart" car, comme vous le savez peut-être je bosse dans un bureau qui s’occupe notamment d’expertises immobilières et, depuis qq semaines je reçois pas mal de demandes justement pour des maisons Modulart…ce qui m’effraie un peu c’est surtout le nombre de terrain qui accueilleront donc de telles maisons (toujours du même modèle « spirit » d’ailleurs, en tout point pareil à ce qu’on trouve déjà sur le lotissement) ….ce qui m’interpelle un peu quand au détournement de la loi Breyne évidemment… :evil: .

Au départ, c’est vrai, je me suis dit que c’est afin de rendre accessible le rêve de construction à certain à moindre coût mais quand je vois le prix de ces maisons quasi équivalent au prix de notre construction, je ne comprends pas bien….
Ok je ne dis pas ici que notre maison c’est la plus belle et ok tous les goûts sont dans la nature blablabla (même si moi ça ne me plait pas bcp ce type de maison…) et ok y’a une rapidité d’exécution mais j’aimerais vraiment comprendre ce qui poussent les gens à opter pour ces maisons plutôt que d’attendre un rien en plus et avoir une maison qui leur ressemblent…ou alors quoi ce sont des espèces de maisons-transit en attendant de pouvoir s’en faire une autre ???? Si c’est ça merci pour nous qui comptons bien passer notre vie dans ce lotissement que nous espérons quand même un minimum joli …….

Non vraiment j’aimerais comprendre… :shock: .

Caroline

User avatar
Khali
Posts: 630
Joined: 27 Jul 2008, 08:26
Location: 0478/65.28.19

Re: Photos construction en une journée

Post by Khali »

Et bien honnêtement, je n'aime pas du tout le style Modulart...mais comme on dit chacun ses goûts et je ne ferais pas un caca nerveux s'il y en avait une à côté de chez moi....ça mettrait peut-etre la mienne en valeur non ? :D

Je suis franchement plus sceptique sur tous les immeubles à appartements qu'il va y avoir que sur ces maisons. Les maisons vont se retrouver enclavées entre ces mastodondes de soit-disant 12 appartements!

Pour le prix, beaucoup ne sont pas bien au courant des prix de la construction et se lancent tête baissée dans le premier projet qu'ils voient.
Une maison Modulart fait dans les 235.000 TVAC et terrain compris, ce qui n'est pas encore exagéré je trouve quand on voit que les terrains de 6 ares frolent les 87.000 € frais notaire compris.
Je ne dis pas qu'elles sont bon marché, simplement qu'elles restent accessibles.
Et puis d'autres sont pressés et en ont marre d'attendre encore une année...

Et puis Caroline, quand les plantations et les beaux arbres de Imwo auront poussé, tu ne verras plus tout ça.... :lol:

Xavisa
Posts: 191
Joined: 27 Sep 2008, 16:33
Location: Gembloux

Re: Photos construction en une journée

Post by Xavisa »

Bonjour,

Je rejoins également votre avis sur ce type de construction, mais il faut faire jouer la concurrence et les différents types de construction. Je me suis fait une raison sur cette société, mais je resterai très vigilant sur les futurs appartements de 12 logements dans les zones B2 (par rapport au nbre de parking prévu,...), car ça peut nous "pourrir" la vie dans le lotissement.

Les autorités communales qui voulaient éviter un maximum la spéculation foncière dans le lotissement, eh bien on peut dire qu'ils ont réussi.

Pour en revenir au sujet, je ne suis pas sûr que ce type de construction soit aussi bon marché qu'ils le prétendent.
Si je prend ma construction (clé sur porte - tous corps de métier compris) et la particularité de ma construction (maison K18-K19), j'arrive avec mes derniers calculs à +/- 850€HTVA, sans les frais de terrain et les honoraires de l'architecte. Quand j'ai fait mon tour à travers les entrepreneurs l'année passée, les prix variaient de 750€HTVA à 1000€HTVA.

Je conseillerai aux personnes de bien s'informer par rapport à ce type de construction : possibilité de mitoyenneté avec un autre type de construction, ventilation de l'air dans la maison afin d'éviter la condensation et l'air vicié (car sur leur site ces maisons se rapprochent de K35), usure dans le temps, différentes possibilités d'extension dans le futur, ...

Maintenant, je comprend qu'il n'est pas facile de nos jours de construire une maison et de payer un double loyer et avec cette technique, on évite, j'imagine cette problématique.

Bonne soirée,

Xa

baude
Posts: 53
Joined: 14 Dec 2008, 21:02
Location: Lot 191

Re: Photos construction en une journée

Post by baude »

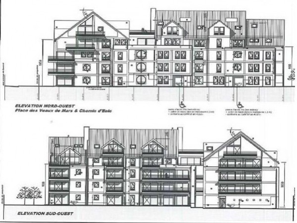
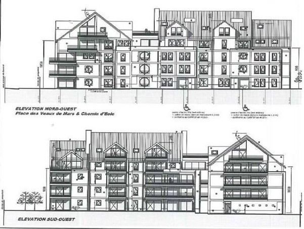
J'avoue que ces immeubles à appartements me font également TRES peur... Juste pour vous donner un exemple, voilà le projet pour le lot 188...
Cap_ 2009-11-23.jpg
Cap_ 2009-11-23.jpg (59.73 KiB) Viewed 16694 times
Cap_3 2009-11-23.jpg
Le projet immobilier compte 34 appartements (avec garages, caves et emplacements de parking souterrain... ouf, iuls auront des places de parking...). Pour vous donner l'idée du projet fini, suffit de colorier la photo en rouge :lol:
Avis également aux amateurs investisseurs car le projet est à construire (projet comprenant terrain+permis d'urbanisme) : s'il vous reste la coquette somme de 743000€ sur votre budget construction, vous pourrez peut-être investir dans un quartier très sympas en pleine expansion...

Je n'ai aucune idée des autres projets mais je suppose qu'ils seront similaires! Ca en fera du monde qui se balladera dans le Qu le dimanche matin et faudra se lever tôt pour les pistolets à la boulangerie!
Avec un rapide calcul (estimation à la louche), vu les emplacements appartements, on aurait dans les 350 apparts au total dans le Qu... Rien qu'autour de la Place des Veaux de Mars, dans les 130 apparts... Bref, on ne risquera pas de se sentir seul :shock:

Geo

User avatar
bulle
Posts: 323
Joined: 22 Jul 2008, 22:40
Location: Floreffe, Lot 32

Re: Photos construction en une journée

Post by bulle »

Je suis complètement d'accord avec Xavisa et Baude:

Un point de référence: le gros bâtiment à l'entrée du lotissement sur la N4.
  • Il fait un étage de moins que celui du plan au dessus de 34 appartements (c'est un nain à côté)
  • Les maisons à 12 appartements sur un terrain B2, c'est de la folie. C'est +- le même gabarit que le bâtiment de la N4 ! (en moins long)
  • Les parkings déjà sans ça, ça n'allait pas ....
Je comprends aussi que certains râlent sur les maisons M. Et j'ai peur que tous ces problèmes ne fassent tâche d'huile.

On est trop distrait et occupé par nos constructions et on devrait peut-être recommencer du lobby à l'urbanisme. Pour essayer que le quartier ressemble à qqch que chacun d'entre-nous veut voir, en essayant d'éviter les dérives d'au dessus, et en étant constructif.

Ps: les bâtiments en B1 sont blancs ou crème (...)
Vous avez vu les terrasses du 1er au 4ième étage sur chaque appart ?

davidoudou
Posts: 147
Joined: 26 Aug 2008, 11:29
Location: Chemin d'Eole

Re: Photos construction en une journée

Post by davidoudou »

C'est vraiment n'importe quoi ces appartements ! Bien que j'étais au courant de leur présence au moment d'acheter mon terrain, je me rend compte que je ne me suis pas rendu compte de la bête que c'était !! :? J'en ai deux près de chez moi, c'est de ma faute mais je ne pense pas qu'on puisse encore y faire quelque chose (malheureusement).

@lex
Posts: 679
Joined: 14 Dec 2008, 15:36

Re: Photos construction en une journée

Post by @lex »

Tout à fait d'accord, c'est monstrueux. Ca va défigurer tout le quartier... sans compter les vis-à-vis surplombants avec les maisons proches... :geek:

Il faudrait faire quelque chose... les terrasses sont hyper envahissantes, et la toiture a l'air de monter vraiment haut.

User avatar
cvwilder
Posts: 65
Joined: 29 Jul 2008, 11:29
Location: Chemin de la Givronde, 17 (Lot 40)

Re: Photos construction en une journée

Post by cvwilder »

Mais mince, je ne m'étais pas rendue compte de ça non plus moi!!! C'est clair que les maisons Modulart à côté c'est du pipi d'chat !!! :shock:
Pour nous idem alors, on a le lot 46 au bout de notre rue et si ça se trouve on aura plein de balcons avec pleins de pti yeux qui n'auront que ça a faire que d'épier tous les jardins qui sont pile en face! Génial ,vive l'intimité :x !!!

Mais que peut-on faire???? :(

Xavisa
Posts: 191
Joined: 27 Sep 2008, 16:33
Location: Gembloux

Re: Photos construction en une journée

Post by Xavisa »

Bonjour,

En analysant les plans qui sont présents, ils respectent le PCA par rapport à la hauteur sous corniche. Ca varie de 9m à 11m d'où une moyenne inférieur à 10,5m (dans PCA, hauteur s/s corniche en B1 de 9m à 10,5m).

Ce qu'il faudra être vigilant, c'est qu'ils prévoient tous au moins 1,5 x le nbre de places de parking par appartement, dans le projet en B1, il me semble que c'est respecté, par contre pour les projets en B2, il faudra être vigilant, car il n'y a aucune place de parking devant ces terrains.

En tout cas, je resterai vigilant.

Bonne soirée et bonne construction à vous,

Xa

Post Reply